


CARACTERISTIQUES
PRINCIPALES
Sélection : Sécurité
- Prix de vente :
92 699 € - Gestionnaire :
STELLA MANAGEMENT - Environnement :
Grande ville - Surface :
28,8 m2 - Rentabilité :
6,1 % - Type de résidence :
Résidence Seniors
DESCRIPTION DU BIEN
Réalisez un investissement locatif sécurisé dans une résidence seniors neuve, en activité depuis juillet 2025, sans souci de gestion : le produit idéal pour vous constituer un patrimoine immobilier tout en bénéficiant d’une forte rentabilité, sécurisée par des loyers stables dès l'acquisition.
• Loyer annuel HT : 5 616 €
• Rentabilité : 6,06 %
• Gestionnaire : Stella Management
Vous bénéficiez du statut fiscal LMNP amortissable, permettant une exonération d’impôt sur vos revenus locatifs. Le bien est exploité par un gestionnaire professionnel (Stella), votre locataire, engagé par un bail commercial (à signer lors de l'acquisition) vous assurant le versement des loyers, que le logement soit loué ou non.
Description du bien :
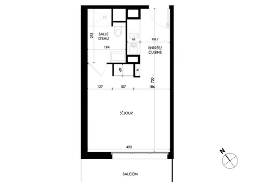
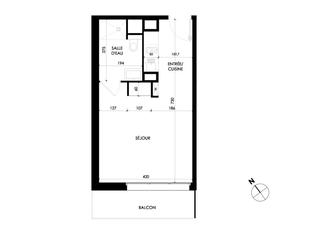
Ce studio de première main, situé au 3ème étage offre une disposition optimisée et agréable : une entrée avec kitchenette, un séjour ouvert sur un large balcon, une salle d’eau avec wc. L'appartement est entièrement climatisé.
À propos de la résidence :
La résidence Les Fleurs de Vigne est une résidence services seniors, idéalement située à Châlons-en-Champagne, en plein cœur de la ville. Elle se trouve à proximité de la Collégiale Notre-Dame-en-Vaux, des commerces de proximité, des services de santé, du cinéma et de la salle de spectacles « La Comète ». La gare SNCF est à environ 2 km.
L'établissement propose une offre de services complète et haut de gamme : espace fitness, restauration de qualité, bibliothèque, salon de coiffure, blanchisserie, espace bien-être, jardins, accueil 24h/24, animations, espaces communs confortables et climatisés, salons privatisables, parking intérieur. La résidence compte environ 94 appartements.
À propos du gestionnaire occupant :
Stella Management est un gestionnaire spécialisé dans les résidences seniors, exploitant aujourd’hui plus de 35 résidences en France. Porté par une croissance soutenue et une expertise reconnue dans le secteur, Stella s’impose comme un acteur fiable et dynamique de l’hébergement senior.
Le coin du LMNP - Paul Delamotte agent basé à NEUILLY SUR SEINE - 01 84 78 46 50 - Plus d'informations sur [email protected] réf. 26264 Bien soumis au statut juridique de la Copropriété. Pas de procédure en cours. Prix TTC et Honoraires à charge vendeur TTC
• Loyer annuel HT : 5 616 €
• Rentabilité : 6,06 %
• Gestionnaire : Stella Management
Vous bénéficiez du statut fiscal LMNP amortissable, permettant une exonération d’impôt sur vos revenus locatifs. Le bien est exploité par un gestionnaire professionnel (Stella), votre locataire, engagé par un bail commercial (à signer lors de l'acquisition) vous assurant le versement des loyers, que le logement soit loué ou non.
Description du bien :
Ce studio de première main, situé au 3ème étage offre une disposition optimisée et agréable : une entrée avec kitchenette, un séjour ouvert sur un large balcon, une salle d’eau avec wc. L'appartement est entièrement climatisé.
À propos de la résidence :
La résidence Les Fleurs de Vigne est une résidence services seniors, idéalement située à Châlons-en-Champagne, en plein cœur de la ville. Elle se trouve à proximité de la Collégiale Notre-Dame-en-Vaux, des commerces de proximité, des services de santé, du cinéma et de la salle de spectacles « La Comète ». La gare SNCF est à environ 2 km.
L'établissement propose une offre de services complète et haut de gamme : espace fitness, restauration de qualité, bibliothèque, salon de coiffure, blanchisserie, espace bien-être, jardins, accueil 24h/24, animations, espaces communs confortables et climatisés, salons privatisables, parking intérieur. La résidence compte environ 94 appartements.
À propos du gestionnaire occupant :
Stella Management est un gestionnaire spécialisé dans les résidences seniors, exploitant aujourd’hui plus de 35 résidences en France. Porté par une croissance soutenue et une expertise reconnue dans le secteur, Stella s’impose comme un acteur fiable et dynamique de l’hébergement senior.
Le coin du LMNP - Paul Delamotte agent basé à NEUILLY SUR SEINE - 01 84 78 46 50 - Plus d'informations sur [email protected] réf. 26264 Bien soumis au statut juridique de la Copropriété. Pas de procédure en cours. Prix TTC et Honoraires à charge vendeur TTC
PLUS D’INFORMATIONS SUR CE BIEN
- Loyer annuel HT : 5616 €
- Échéance du bail commercial (en années) : 9
- Étage(s) : N.C.
- Nombre de pièces : 1
- Année de construction : 2025
- Taxe foncière : N.C.
- Charges de copropriétés mensuelles : N.C.
- Référence : 26264
CONTACTEZ-NOUS
ÉCHANGER AVEC UN
CONSEILLER SUR CE BIEN
Prenez contact avec Paul Delamotte qui vous en dira plus sur ce bien disponible à l'achat en LMNP, et qui vous aidera à définir votre projet.
LOCALISATION
DE LA RÉSIDENCE
PLANIFIER LE FINANCEMENT
DE CE BIEN
Utilisez notre simulateur de prêt pour vous projeter dans l’acquisition de ce bien LMNP. Renseignez le montant de votre apport et les modalités de votre emprunt bancaire pour déterminer quel effort d’épargne vous devrez dédier à l’acquisition de ce bien, ou quel revenu mensuel il vous permettra de percevoir.
DÉCOUVREZ DES BIENS SIMILAIRES
Ils nous ont fait confiance
















/https%3A%2F%2Fphotos.exportadapt.com%2F75055%2Fnego_75055676_grande.jpg)







































