
CARACTERISTIQUES
PRINCIPALES
Sélection : Dynamique
- Prix de vente :
47 000 € - Gestionnaire :
Cap West - Environnement :
Campagne - Surface :
27,4 m2 - Rentabilité :
8,8 % - Type de résidence :
Résidence Affaires
DESCRIPTION DU BIEN
Réalisez un investissement locatif sécurisé en résidence d’Affaires sans souci de gestion : le produit idéal pour vous constituer un patrimoine immobilier tout en bénéficiant d’une rentabilité sécurisée par des loyers stables, dès l'acquisition.
• Loyer annuel HT : 4 113.96 €
• Rentabilité : 8.75 %
• Gestionnaire : CAP WEST
Vous bénéficiez du statut fiscal LMNP amortissable, permettant une exonération d’impôt sur vos revenus locatifs. Le bien est exploité par un gestionnaire professionnel (CAP WEST), engagé par un bail commercial, vous assurant le versement des loyers dès l’acquisition, que le logement soit loué ou non.
Description du bien :
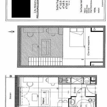
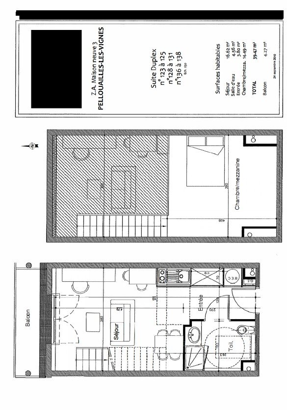
Cet appartement T1 situé au rez-de-chaussée offre une disposition optimisée : une entrée avec placards et kitchenette, un séjour, une salle d’eau avec W.C. ainsi que la jouissance privative et exclusive d’une terrasse. Un emplacement de stationnement situé à l'extérieur.
À propos de la résidence :
La résidence CAP WEST Verrières-en-Anjou est une résidence d’Affaires, idéalement située à Verrières-en-Anjou (Pellouailles-les-Vignes), à moins de 15 minutes du centre-ville d’Angers et à 5 minutes du Parc Expo, proche de la sortie A11 et de la halte TER du Vieux-Briollay, ce qui constitue un atout majeur. Elle accueille une clientèle de professionnels et propose des hébergements meublés avec services para-hôteliers. Implantée dans un cadre verdoyant, la résidence propose un ensemble de services complets : accueil, connexion Wi-Fi, blanchisserie/laverie, salle de remise en forme, parking extérieur sécurisé, sécurité 24h/24. Elle comprend environ 90 logements en copropriété.
À propos du gestionnaire occupant :
CAP WEST, filiale du groupe West Finance, gestionnaire de plus de 40 résidences de tourisme et d’affaires en France, bénéficie de 25 ans d’expérience et d’une expertise reconnue dans la gestion de résidences de services.
Le coin du LMNP - Gregoire Touche agent basé à NEUILLY SUR SEINE - 01 84 78 46 50 - Plus d'informations sur [email protected] réf. 25547 Bien soumis au statut juridique de la Copropriété. Charges annuelles de copropriété (Montant moyen annuel quote-part du budget prévisionnel vendeur) : 480 €. Pas de procédure en cours. Honoraires à la charge du vendeur
• Loyer annuel HT : 4 113.96 €
• Rentabilité : 8.75 %
• Gestionnaire : CAP WEST
Vous bénéficiez du statut fiscal LMNP amortissable, permettant une exonération d’impôt sur vos revenus locatifs. Le bien est exploité par un gestionnaire professionnel (CAP WEST), engagé par un bail commercial, vous assurant le versement des loyers dès l’acquisition, que le logement soit loué ou non.
Description du bien :
Cet appartement T1 situé au rez-de-chaussée offre une disposition optimisée : une entrée avec placards et kitchenette, un séjour, une salle d’eau avec W.C. ainsi que la jouissance privative et exclusive d’une terrasse. Un emplacement de stationnement situé à l'extérieur.
À propos de la résidence :
La résidence CAP WEST Verrières-en-Anjou est une résidence d’Affaires, idéalement située à Verrières-en-Anjou (Pellouailles-les-Vignes), à moins de 15 minutes du centre-ville d’Angers et à 5 minutes du Parc Expo, proche de la sortie A11 et de la halte TER du Vieux-Briollay, ce qui constitue un atout majeur. Elle accueille une clientèle de professionnels et propose des hébergements meublés avec services para-hôteliers. Implantée dans un cadre verdoyant, la résidence propose un ensemble de services complets : accueil, connexion Wi-Fi, blanchisserie/laverie, salle de remise en forme, parking extérieur sécurisé, sécurité 24h/24. Elle comprend environ 90 logements en copropriété.
À propos du gestionnaire occupant :
CAP WEST, filiale du groupe West Finance, gestionnaire de plus de 40 résidences de tourisme et d’affaires en France, bénéficie de 25 ans d’expérience et d’une expertise reconnue dans la gestion de résidences de services.
Le coin du LMNP - Gregoire Touche agent basé à NEUILLY SUR SEINE - 01 84 78 46 50 - Plus d'informations sur [email protected] réf. 25547 Bien soumis au statut juridique de la Copropriété. Charges annuelles de copropriété (Montant moyen annuel quote-part du budget prévisionnel vendeur) : 480 €. Pas de procédure en cours. Honoraires à la charge du vendeur
PLUS D’INFORMATIONS SUR CE BIEN
- Loyer annuel HT : 4114,0 €
- Échéance du bail commercial (en années) : 9
- Étage(s) : N.C.
- Nombre de pièces : 1
- Année de construction : 2011
- Taxe foncière : 277 €
- Charges de copropriétés mensuelles : 40 €
- Référence : 25547
CONTACTEZ-NOUS
ÉCHANGER AVEC UN
CONSEILLER SUR CE BIEN
Prenez contact avec Gregoire Touche qui vous en dira plus sur ce bien disponible à l'achat en LMNP, et qui vous aidera à définir votre projet.
LOCALISATION
DE LA RÉSIDENCE
PLANIFIER LE FINANCEMENT
DE CE BIEN
Utilisez notre simulateur de prêt pour vous projeter dans l’acquisition de ce bien LMNP. Renseignez le montant de votre apport et les modalités de votre emprunt bancaire pour déterminer quel effort d’épargne vous devrez dédier à l’acquisition de ce bien, ou quel revenu mensuel il vous permettra de percevoir.
DÉCOUVREZ DES BIENS SIMILAIRES
Ils nous ont fait confiance

/https%3A%2F%2Fphotos.exportadapt.com%2F75055%2Fnego_750551198_grande.jpg)








