


CARACTERISTIQUES
PRINCIPALES
Sélection : Équilibre
- Prix de vente :
99 000 € - Gestionnaire :
Cap West - Environnement :
Mer - Surface :
42,9 m2 - Rentabilité :
6,5 % - Type de résidence :
Résidence Affaires
DESCRIPTION DU BIEN
Réalisez un investissement locatif sécurisé en résidence de tourisme sans souci de gestion : le produit idéal pour bâtir un patrimoine immobilier tout en bénéficiant d’une rentabilité sécurisée par des loyers stables, dès l'acquisition.
• Loyer annuel HT : 6 420 €
• Rentabilité : 6,48 %
• Gestionnaire : Cap West
Vous bénéficiez du statut fiscal LMNP amortissable, permettant une exonération d’impôt sur vos revenus locatifs. Le bien est exploité par un gestionnaire professionnel (Cap West), engagé par un bail commercial, vous assurant le versement des loyers dès l’acquisition, que le logement soit loué ou non.
Description du bien :
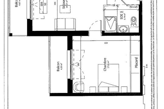
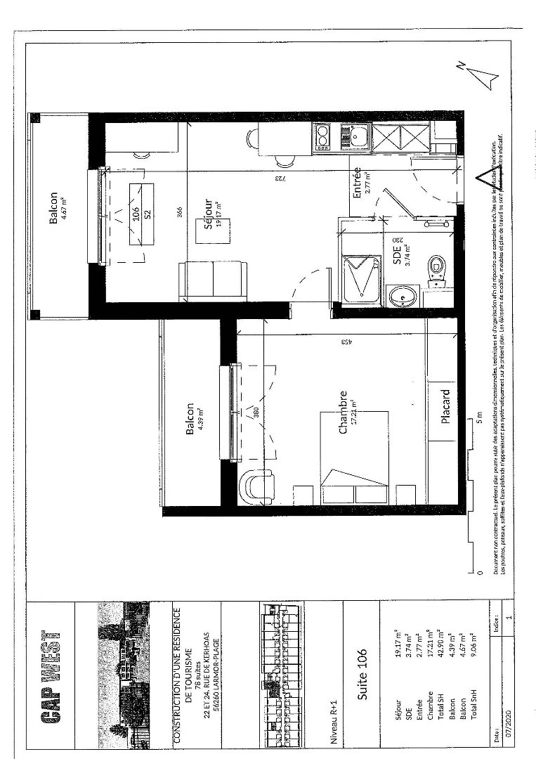
Cet appartement T2 situé au 1er étage offre une disposition fonctionnelle et optimisée : une entrée, une chambre avec placard, un séjour avec coin cuisine, une salle d'eau avec wc et la jouissance exclusive d'un balcon.
À propos de la résidence :
La résidence Cap West est une résidence de tourisme idéalement située à Larmor-Plage, à proximité des plages, des commerces et à quelques minutes de Lorient, avec un accès rapide à la gare de Lorient et à l’axe N165. Elle accueille une clientèle de loisirs et d’affaires et propose des hébergements meublés avec services para-hôteliers.
Son emplacement proche du centre-ville et des principaux axes routiers constitue un atout majeur.
L'établissement propose un ensemble de services : accueil, parking, local vélos, laverie, accès sécurisé et connexion Wi-Fi.
A propos du gestionnaire occupant :
Cap West exploite plusieurs résidences en France et se distingue par son expertise en gestion de résidences de tourisme et d’affaires, garantissant une gestion professionnelle et pérenne des exploitations.
Le coin du LMNP - Gregoire Touche agent basé à NEUILLY SUR SEINE - 01 84 78 46 50 - Plus d'informations sur [email protected] réf. 27077 Bien soumis au statut juridique de la Copropriété. Charges annuelles de copropriété (Montant moyen annuel quote-part du budget prévisionnel vendeur) : 1 560 €. Pas de procédure en cours. Honoraires à la charge du vendeur
• Loyer annuel HT : 6 420 €
• Rentabilité : 6,48 %
• Gestionnaire : Cap West
Vous bénéficiez du statut fiscal LMNP amortissable, permettant une exonération d’impôt sur vos revenus locatifs. Le bien est exploité par un gestionnaire professionnel (Cap West), engagé par un bail commercial, vous assurant le versement des loyers dès l’acquisition, que le logement soit loué ou non.
Description du bien :
Cet appartement T2 situé au 1er étage offre une disposition fonctionnelle et optimisée : une entrée, une chambre avec placard, un séjour avec coin cuisine, une salle d'eau avec wc et la jouissance exclusive d'un balcon.
À propos de la résidence :
La résidence Cap West est une résidence de tourisme idéalement située à Larmor-Plage, à proximité des plages, des commerces et à quelques minutes de Lorient, avec un accès rapide à la gare de Lorient et à l’axe N165. Elle accueille une clientèle de loisirs et d’affaires et propose des hébergements meublés avec services para-hôteliers.
Son emplacement proche du centre-ville et des principaux axes routiers constitue un atout majeur.
L'établissement propose un ensemble de services : accueil, parking, local vélos, laverie, accès sécurisé et connexion Wi-Fi.
A propos du gestionnaire occupant :
Cap West exploite plusieurs résidences en France et se distingue par son expertise en gestion de résidences de tourisme et d’affaires, garantissant une gestion professionnelle et pérenne des exploitations.
Le coin du LMNP - Gregoire Touche agent basé à NEUILLY SUR SEINE - 01 84 78 46 50 - Plus d'informations sur [email protected] réf. 27077 Bien soumis au statut juridique de la Copropriété. Charges annuelles de copropriété (Montant moyen annuel quote-part du budget prévisionnel vendeur) : 1 560 €. Pas de procédure en cours. Honoraires à la charge du vendeur
PLUS D’INFORMATIONS SUR CE BIEN
- Loyer annuel HT : 6420 €
- Échéance du bail commercial (en années) : ç
- Étage(s) : N.C.
- Nombre de pièces : 2
- Année de construction : 2023
- Taxe foncière : 144 €
- Charges de copropriétés mensuelles : 130 €
- Référence : 27077
CONTACTEZ-NOUS
ÉCHANGER AVEC UN
CONSEILLER SUR CE BIEN
Prenez contact avec Gregoire Touche qui vous en dira plus sur ce bien disponible à l'achat en LMNP, et qui vous aidera à définir votre projet.
LOCALISATION
DE LA RÉSIDENCE
PLANIFIER LE FINANCEMENT
DE CE BIEN
Utilisez notre simulateur de prêt pour vous projeter dans l’acquisition de ce bien LMNP. Renseignez le montant de votre apport et les modalités de votre emprunt bancaire pour déterminer quel effort d’épargne vous devrez dédier à l’acquisition de ce bien, ou quel revenu mensuel il vous permettra de percevoir.
DÉCOUVREZ DES BIENS SIMILAIRES
Ils nous ont fait confiance



/https%3A%2F%2Fphotos.exportadapt.com%2F75055%2Fnego_750551198_grande.jpg)













