

CARACTERISTIQUES
PRINCIPALES
Sélection : Équilibre
- Prix de vente :
95 000 € - Gestionnaire :
Cap West - Environnement :
Grande ville - Surface :
40 m2 - Rentabilité :
6,0 % - Type de résidence :
Résidence Affaires
DESCRIPTION DU BIEN
Réalisez un investissement locatif sécurisé en résidence de tourisme sans souci de gestion : le produit idéal pour vous constituer un patrimoine immobilier tout en bénéficiant d’une rentabilité sécurisée par des loyers stables, dès l'acquisition.
• Loyer annuel HT : 5 731 €
• Rentabilité : 6%
• Gestionnaire : Cap West
Vous bénéficiez du statut fiscal LMNP amortissable, permettant une exonération d’impôt sur vos revenus locatifs. Le bien est exploité par un gestionnaire professionnel Cap West, engagé par un bail commercial, vous assurant le versement des loyers dès l’acquisition, que le logement soit loué ou non.
Description du bien :
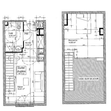
Ce T2 en duplex situé au 3ème étage offre une disposition optimisée avec une entrée dotée de placards, une kitchenette, un séjour prolongé par un balcon, une salle d’eau avec wc, une chambre en mezzanine. À l’extérieur : un stationnement privatif.
Aucune condition particulière d’occupation pour le propriétaire.
À propos de la résidence :
La résidence Cap West Maubreuil est une résidence de tourisme 1 étoile, idéalement située à Carquefou (5 allée de Maubreuil, 44470), en lisière de forêt et au calme. À seulement 8 km de Nantes, elle se trouve à 12 km de la gare de Nantes et à 22 km de l’aéroport Nantes-Atlantique, proche d’un axe autoroutier (A11/E6 sortie Carquefou centre) et desservie par les lignes 85 bus et 1 tramway Haluchère-Batignolles, ce qui constitue un atout majeur pour son attractivité. Cette résidence compte 111 appartements meublés, du studio au T3, destinés à des séjours de courte, moyenne ou longue durée. Elle accueille une clientèle de tourisme et d’affaires, avec des prestations para-hôtelières : accueil, parking extérieur privé, laverie, salle de sport, vidéosurveillance, sécurité, Wi-Fi, accès PMR
À propos du gestionnaire occupant :
Cap West, filiale du groupe West Finance (créé en 2008), est spécialisé dans la gestion de résidences d’affaires et de tourisme. Il gère 31 résidences, principalement dans l’Ouest et en Île-de-France, et bénéficie de 25 ans d’expérience dans l’immobilier hôtelier. Sa fiabilité, son expertise dans le segment LMNP et la qualité de ses emplacements en font un gestionnaire de référence.
Les diagnostics sont en cours de réalisation.
Le coin du LMNP - Clément Courant agent basé à NEUILLY SUR SEINE - 01 84 78 46 50 - Plus d'informations sur www.lecoindulmnp.fr réf. 26308 Bien soumis au statut juridique de la Copropriété. Charges annuelles de copropriété (Montant moyen annuel quote-part du budget prévisionnel vendeur) : 1 412 €. Pas de procédure en cours. Prix TTC et Honoraires à charge vendeur TTC
• Loyer annuel HT : 5 731 €
• Rentabilité : 6%
• Gestionnaire : Cap West
Vous bénéficiez du statut fiscal LMNP amortissable, permettant une exonération d’impôt sur vos revenus locatifs. Le bien est exploité par un gestionnaire professionnel Cap West, engagé par un bail commercial, vous assurant le versement des loyers dès l’acquisition, que le logement soit loué ou non.
Description du bien :
Ce T2 en duplex situé au 3ème étage offre une disposition optimisée avec une entrée dotée de placards, une kitchenette, un séjour prolongé par un balcon, une salle d’eau avec wc, une chambre en mezzanine. À l’extérieur : un stationnement privatif.
Aucune condition particulière d’occupation pour le propriétaire.
À propos de la résidence :
La résidence Cap West Maubreuil est une résidence de tourisme 1 étoile, idéalement située à Carquefou (5 allée de Maubreuil, 44470), en lisière de forêt et au calme. À seulement 8 km de Nantes, elle se trouve à 12 km de la gare de Nantes et à 22 km de l’aéroport Nantes-Atlantique, proche d’un axe autoroutier (A11/E6 sortie Carquefou centre) et desservie par les lignes 85 bus et 1 tramway Haluchère-Batignolles, ce qui constitue un atout majeur pour son attractivité. Cette résidence compte 111 appartements meublés, du studio au T3, destinés à des séjours de courte, moyenne ou longue durée. Elle accueille une clientèle de tourisme et d’affaires, avec des prestations para-hôtelières : accueil, parking extérieur privé, laverie, salle de sport, vidéosurveillance, sécurité, Wi-Fi, accès PMR
À propos du gestionnaire occupant :
Cap West, filiale du groupe West Finance (créé en 2008), est spécialisé dans la gestion de résidences d’affaires et de tourisme. Il gère 31 résidences, principalement dans l’Ouest et en Île-de-France, et bénéficie de 25 ans d’expérience dans l’immobilier hôtelier. Sa fiabilité, son expertise dans le segment LMNP et la qualité de ses emplacements en font un gestionnaire de référence.
Les diagnostics sont en cours de réalisation.
Le coin du LMNP - Clément Courant agent basé à NEUILLY SUR SEINE - 01 84 78 46 50 - Plus d'informations sur www.lecoindulmnp.fr réf. 26308 Bien soumis au statut juridique de la Copropriété. Charges annuelles de copropriété (Montant moyen annuel quote-part du budget prévisionnel vendeur) : 1 412 €. Pas de procédure en cours. Prix TTC et Honoraires à charge vendeur TTC
PLUS D’INFORMATIONS SUR CE BIEN
- Loyer annuel HT : 5731,0 €
- Échéance du bail commercial (en années) : 9
- Étage(s) : N.C.
- Nombre de pièces : 2
- Année de construction : 2011
- Taxe foncière : 520 €
- Charges de copropriétés mensuelles : 117 €
- Référence : 26308
CONTACTEZ-NOUS
ÉCHANGER AVEC UN
CONSEILLER SUR CE BIEN
Prenez contact avec Clément Courant qui vous en dira plus sur ce bien disponible à l'achat en LMNP, et qui vous aidera à définir votre projet.
LOCALISATION
DE LA RÉSIDENCE
PLANIFIER LE FINANCEMENT
DE CE BIEN
Utilisez notre simulateur de prêt pour vous projeter dans l’acquisition de ce bien LMNP. Renseignez le montant de votre apport et les modalités de votre emprunt bancaire pour déterminer quel effort d’épargne vous devrez dédier à l’acquisition de ce bien, ou quel revenu mensuel il vous permettra de percevoir.
DÉCOUVREZ DES BIENS SIMILAIRES
Ils nous ont fait confiance


/https%3A%2F%2Fphotos.exportadapt.com%2F75055%2Fnego_750551178_grande.jpg)











