

CARACTERISTIQUES
PRINCIPALES
Sélection : Dynamique
- Prix de vente :
82 000 € - Gestionnaire :
Cap West - Environnement :
Mer - Surface :
39,2 m2 - Rentabilité :
7,7 % - Type de résidence :
Résidence Affaires
DESCRIPTION DU BIEN
Réalisez un investissement locatif sécurisé en résidence de tourisme sans souci de gestion : le produit idéal pour vous constituer un patrimoine immobilier tout en bénéficiant d’une rentabilité sécurisée par des loyers stables, dès l’acquisition.
• Loyer annuel HT : 6 276 €
• Rentabilité : 7,65 %
• Gestionnaire : Cap West
Vous bénéficiez du statut fiscal LMNP amortissable, permettant une exonération d’impôt sur vos revenus locatifs. Le bien est exploité par un gestionnaire professionnel (Cap West), engagé par un bail commercial, vous assurant le versement des loyers dès l’acquisition, que le logement soit loué ou non.
Description du bien :
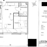
Cet appartement T2 situé au 2eme étage offre une disposition fonctionnelle et optimisée : comprenant une entrée avec placards, un séjour avec kitchenette, une chambre avec placard, W.C., salle de bains et un balcon, ainsi qu’un parking intérieur.
À propos de la résidence :
La résidence Cap West est une résidence de tourisme, idéalement située à Pornic, à proximité des commerces, du port et des plages de la Côte de Jade. Elle bénéficie d’une adresse stratégique : à 3 km de la gare SNCF de Pornic et à environ 46 km de l’aéroport de Nantes Atlantique, ce qui constitue un atout majeur pour l’accessibilité.
L'établissement propose des hébergements meublés avec services para-hôteliers. La résidence offre des prestations complètes : parking intérieur, balcon privatif et équipements modernes. Elle dispose d’une copropriété bien structurée.
A propos du gestionnaire occupant :
Cap West est une société de gestion spécialisée dans l’exploitation de résidences de tourisme, implantée depuis plus de 25 ans, et reconnue pour son savoir-faire et sa solidité dans l’Ouest de la France.
Les diagnostics sont en cours de réalisation.
Le coin du LMNP - Marine Faure agent basé à NEUILLY SUR SEINE - 01 84 78 46 50 - Plus d'informations sur [email protected] réf. 26179 Bien soumis au statut juridique de la Copropriété. Charges annuelles de copropriété (Montant moyen annuel quote-part du budget prévisionnel vendeur) : 1 565 €. Pas de procédure en cours. Prix TTC et Honoraires à charge vendeur TTC
• Loyer annuel HT : 6 276 €
• Rentabilité : 7,65 %
• Gestionnaire : Cap West
Vous bénéficiez du statut fiscal LMNP amortissable, permettant une exonération d’impôt sur vos revenus locatifs. Le bien est exploité par un gestionnaire professionnel (Cap West), engagé par un bail commercial, vous assurant le versement des loyers dès l’acquisition, que le logement soit loué ou non.
Description du bien :
Cet appartement T2 situé au 2eme étage offre une disposition fonctionnelle et optimisée : comprenant une entrée avec placards, un séjour avec kitchenette, une chambre avec placard, W.C., salle de bains et un balcon, ainsi qu’un parking intérieur.
À propos de la résidence :
La résidence Cap West est une résidence de tourisme, idéalement située à Pornic, à proximité des commerces, du port et des plages de la Côte de Jade. Elle bénéficie d’une adresse stratégique : à 3 km de la gare SNCF de Pornic et à environ 46 km de l’aéroport de Nantes Atlantique, ce qui constitue un atout majeur pour l’accessibilité.
L'établissement propose des hébergements meublés avec services para-hôteliers. La résidence offre des prestations complètes : parking intérieur, balcon privatif et équipements modernes. Elle dispose d’une copropriété bien structurée.
A propos du gestionnaire occupant :
Cap West est une société de gestion spécialisée dans l’exploitation de résidences de tourisme, implantée depuis plus de 25 ans, et reconnue pour son savoir-faire et sa solidité dans l’Ouest de la France.
Les diagnostics sont en cours de réalisation.
Le coin du LMNP - Marine Faure agent basé à NEUILLY SUR SEINE - 01 84 78 46 50 - Plus d'informations sur [email protected] réf. 26179 Bien soumis au statut juridique de la Copropriété. Charges annuelles de copropriété (Montant moyen annuel quote-part du budget prévisionnel vendeur) : 1 565 €. Pas de procédure en cours. Prix TTC et Honoraires à charge vendeur TTC
PLUS D’INFORMATIONS SUR CE BIEN
- Loyer annuel HT : 6276 €
- Échéance du bail commercial (en années) : 9 ans
- Étage(s) : N.C.
- Nombre de pièces : 2
- Année de construction : 1996
- Taxe foncière : 337 €
- Charges de copropriétés mensuelles : 130 €
- Référence : 26179
CONTACTEZ-NOUS
ÉCHANGER AVEC UN
CONSEILLER SUR CE BIEN
Prenez contact avec Marine Faure qui vous en dira plus sur ce bien disponible à l'achat en LMNP, et qui vous aidera à définir votre projet.
LOCALISATION
DE LA RÉSIDENCE
PLANIFIER LE FINANCEMENT
DE CE BIEN
Utilisez notre simulateur de prêt pour vous projeter dans l’acquisition de ce bien LMNP. Renseignez le montant de votre apport et les modalités de votre emprunt bancaire pour déterminer quel effort d’épargne vous devrez dédier à l’acquisition de ce bien, ou quel revenu mensuel il vous permettra de percevoir.
DÉCOUVREZ DES BIENS SIMILAIRES
Ils nous ont fait confiance


/https%3A%2F%2Fphotos.exportadapt.com%2F75055%2Fnego_750551170_grande.jpg)











