


CARACTERISTIQUES
PRINCIPALES
Sélection : Équilibre
- Prix de vente :
56 000 € - Gestionnaire :
Cap West - Environnement :
Grande ville - Surface :
27,6 m2 - Rentabilité :
7,5 % - Type de résidence :
Résidence Affaires
DESCRIPTION DU BIEN
Réalisez un investissement locatif sécurisé en résidence de tourisme sans souci de gestion : le produit idéal pour vous constituer un patrimoine immobilier tout en bénéficiant d’une rentabilité sécurisée par des loyers stables, dès l'acquisition.
• Loyer annuel HT : 4 202 €
• Rentabilité : 7.50 %
• Gestionnaire : Cap West
Vous bénéficiez du statut fiscal LMNP amortissable, permettant une exonération d’impôt sur vos revenus locatifs. Le bien est exploité par un gestionnaire professionnel (Cap West), engagé par un bail commercial, vous assurant le versement des loyers dès l’acquisition, que le logement soit loué ou non.
Description du bien :
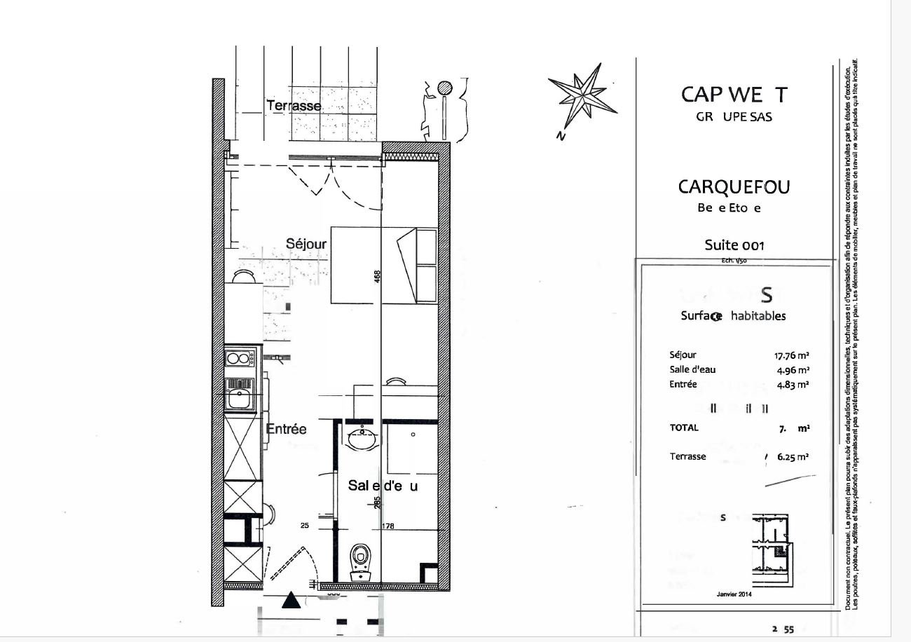
Cette suite PMR située au rez-de-chaussée offre un agencement fonctionnel et agréable comprenant : entrée avec placards, salle d'eau avec wc, séjour avec kitchenette, jouissance privative d'une terrasse et un stationnement situé à l’extérieur.
À propos de la résidence :
La résidence Belle Etoile 2 est une résidence de tourisme, idéalement située à Carquefou, à proximité de commerces, restaurants et entreprises dans une zone d’activité. Elle se trouve à environ 12 km de la gare de Nantes, 23 km de l’aéroport Nantes Atlantique, et est accessible via l’autoroute A11, ce qui constitue un atout majeur.
L'établissement propose une offre de services globale : hébergements meublés, kitchenette équipée, balcon ou terrasse, parking, blanchisserie. La copropriété comprend 66 lots.
À propos du gestionnaire occupant :
Cap West – gestionnaire spécialisé dans les résidences de tourisme et d’affaires, disposant d’un réseau de résidences en France, reconnu pour la qualité de ses emplacements et la fiabilité de sa gestion.
Les diagnostics sont en cours de réalisation.
Le coin du LMNP - Gregoire Touche agent basé à NEUILLY SUR SEINE - 01 84 78 46 50 - Plus d'informations sur [email protected] réf. 26924 Bien soumis au statut juridique de la Copropriété. Charges annuelles de copropriété (Montant moyen annuel quote-part du budget prévisionnel vendeur) : 658 €. Pas de procédure en cours. Honoraires à la charge du vendeur
• Loyer annuel HT : 4 202 €
• Rentabilité : 7.50 %
• Gestionnaire : Cap West
Vous bénéficiez du statut fiscal LMNP amortissable, permettant une exonération d’impôt sur vos revenus locatifs. Le bien est exploité par un gestionnaire professionnel (Cap West), engagé par un bail commercial, vous assurant le versement des loyers dès l’acquisition, que le logement soit loué ou non.
Description du bien :
Cette suite PMR située au rez-de-chaussée offre un agencement fonctionnel et agréable comprenant : entrée avec placards, salle d'eau avec wc, séjour avec kitchenette, jouissance privative d'une terrasse et un stationnement situé à l’extérieur.
À propos de la résidence :
La résidence Belle Etoile 2 est une résidence de tourisme, idéalement située à Carquefou, à proximité de commerces, restaurants et entreprises dans une zone d’activité. Elle se trouve à environ 12 km de la gare de Nantes, 23 km de l’aéroport Nantes Atlantique, et est accessible via l’autoroute A11, ce qui constitue un atout majeur.
L'établissement propose une offre de services globale : hébergements meublés, kitchenette équipée, balcon ou terrasse, parking, blanchisserie. La copropriété comprend 66 lots.
À propos du gestionnaire occupant :
Cap West – gestionnaire spécialisé dans les résidences de tourisme et d’affaires, disposant d’un réseau de résidences en France, reconnu pour la qualité de ses emplacements et la fiabilité de sa gestion.
Les diagnostics sont en cours de réalisation.
Le coin du LMNP - Gregoire Touche agent basé à NEUILLY SUR SEINE - 01 84 78 46 50 - Plus d'informations sur [email protected] réf. 26924 Bien soumis au statut juridique de la Copropriété. Charges annuelles de copropriété (Montant moyen annuel quote-part du budget prévisionnel vendeur) : 658 €. Pas de procédure en cours. Honoraires à la charge du vendeur
PLUS D’INFORMATIONS SUR CE BIEN
- Loyer annuel HT : 4202,0 €
- Échéance du bail commercial (en années) : 9
- Étage(s) : N.C.
- Nombre de pièces : 1
- Année de construction : 2015
- Taxe foncière : 355 €
- Charges de copropriétés mensuelles : 54 €
- Référence : 26924
CONTACTEZ-NOUS
ÉCHANGER AVEC UN
CONSEILLER SUR CE BIEN
Prenez contact avec Gregoire Touche qui vous en dira plus sur ce bien disponible à l'achat en LMNP, et qui vous aidera à définir votre projet.
LOCALISATION
DE LA RÉSIDENCE
PLANIFIER LE FINANCEMENT
DE CE BIEN
Utilisez notre simulateur de prêt pour vous projeter dans l’acquisition de ce bien LMNP. Renseignez le montant de votre apport et les modalités de votre emprunt bancaire pour déterminer quel effort d’épargne vous devrez dédier à l’acquisition de ce bien, ou quel revenu mensuel il vous permettra de percevoir.
DÉCOUVREZ DES BIENS SIMILAIRES
Ils nous ont fait confiance



/https%3A%2F%2Fphotos.exportadapt.com%2F75055%2Fnego_750551198_grande.jpg)













